
2096-6016-60-07
PC-Armoires 2096
- Fonctionnalité et design
- Montage individuel
- Indice de protection
- Montage adaptable avec accessoires
Description du produit
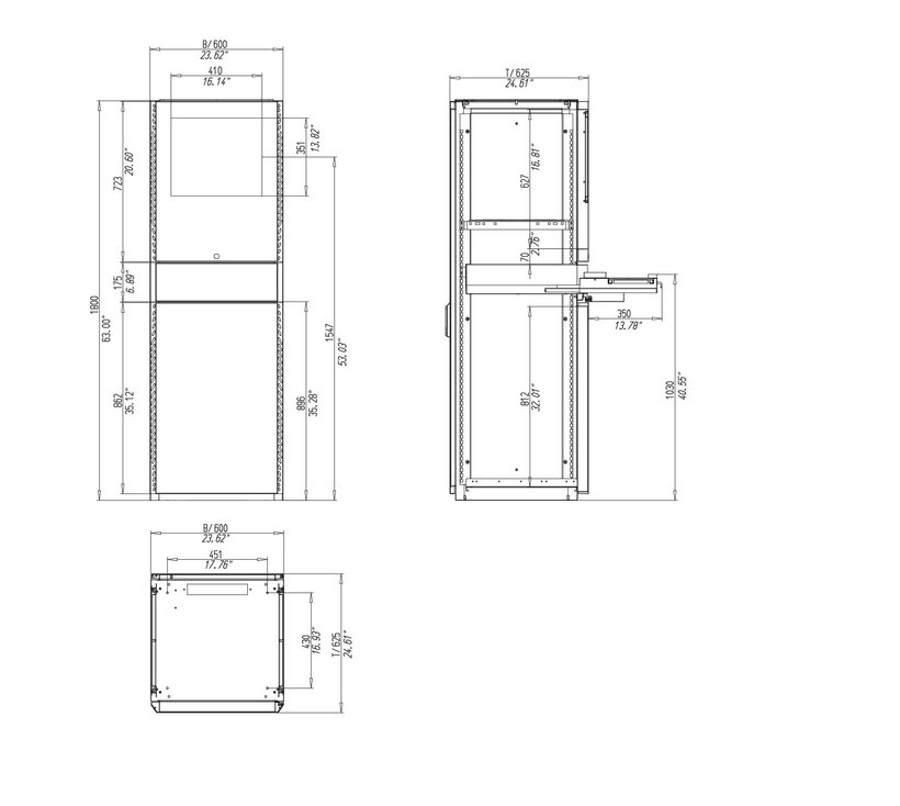
Armoire PC avec système de verrouillage centralisé pour toute la face avant. Portes plexi conçues pour écrans jusqu‘à 21", 4:3 ou 16:9. Support repose-mains en bois
Mise à la terre selon DIN EN 61439-1, goujons M8x20 mm sur le toit, au sol et sur la paroi latérale. Plaque de montage préparée avec des perçages.
Portes et tiroir pour clavier avec joint d’étanchéité injecté en continu
Portes frontales charnières à droite, portes arrière charnières à droite et à gauche
Angle d’ouverture porte arrière 120°, serrure à crémone en dehors de la zone du joint d’étanchéité
Fermeture : face avant avec serrure à cylindre, porte arrière standard double-barre 3 mm
Tiroir du clavier, verrouillable, dimensions maxi. du clavier L=500 x l=190 x H=50 mm et boîte de classement
Cache arrière du tiroir de clavier, avec entrées de câbles et support-câbles
Panneaux latéraux intérieurs et plaque supérieure démontable et fixée de l’intérieur
Traverses verticales perforées tous les 25 mm
Sol arrière avec plaque de câbles pour la connexion et l’entrée de câbles préparée pour le montage du passage de câbles avec brosses.
Porte arrière avec crémone et axe double-barre 3 mm
Caractéristiques techniques
-
Référence: 2096-6016-60-07
-
Type de la charnière: 120°
-
Raccordement du conducteur de protection: selon DIN EN 61439-1
-
Finition: Revêtement poudre RAL 7035, structuré
-
Indice de protection: standard IP 55
conforme à NEMA 12 -
Epaisseur de tôle: Portes avant, rabat du clavier et parois latérales : 1,5 mm
Porte arrière: 2 mm
Cadre/Corps: 2 mm -
Matériau: Tôle d’acier
-
Dimension: Largeur : 600 mm Épaisseur : 1600 mm Profondeur : 625 mm
-
Poids: 115 kg
-
Type d’armoire: Cellules PC
Remarque
- Dimensions extérieures de l’écran L x H x P : 556 x 432 x 250 mm (y compris le pied support) ne doivent pas être dépassées.
- Armoire PC avec face avant tripartie
- Panneau latéral intérieur
- Toit
- Panneau arrière
- Porte arrière sur charnières
- 2 clés
- Plaque de câbles
- Listeaux esthétiques intérieurs

Support central accrochable

Chariot d'equipement coulissant, 2 niveaux

Plaque supérieure avec retenue de câbles en caoutchouc

Plaque supérieure avec barre à brosses
Les armoires de commande et les coffrets optimaux ne sont pas créés à la chaîne, mais en discutant avec vous. Vous êtes prêt ? Alors, parlez-en tout de suite à votre conseiller personnel häwa.

